Извод из важеће планске документације
Измена и допуна Плана детаљне регулације просторне целине Косанчићев венац за део блока између улица: Карађорђева, Велике степенице и Косанчићев венац, градска општина Стари град („Службени лист града Београда“, бр. 76/21)
План генералне регулације грађевинског подручја седишта јединице локалне самоуправе – град Београд (целине I-XIX) („Службени лист града Београда“, бр. 20/16, 97/16, 69/17 и 97/17)
План генералне регулације система зелених површина Београда („Службени лист града Београда“, бр. 110/2019)


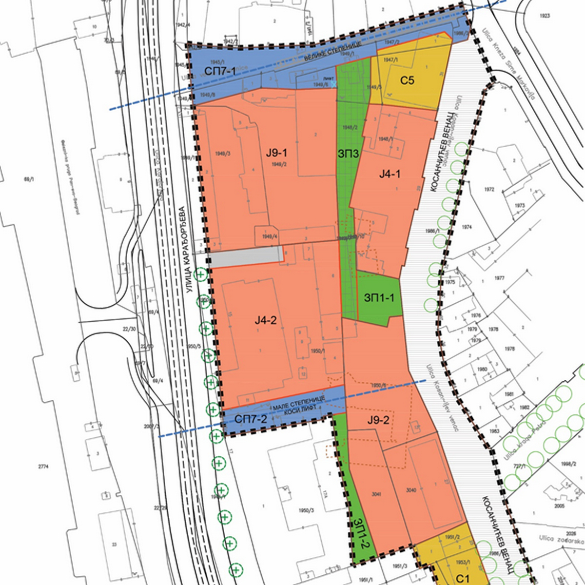
Извод из Измене и допуне Плана дедтаљне регулације просторне целине Косанчићев венац за део блока између улица: Карађорђева, Велике степенице и Косанчићев венац, градска општина Стари град („Службени лист града Београда“, бр. 76/21) , графички прилог 01 „Постојећа намена површина“
Правила уређења и грађења за површине јавне намене
Површине за објекте и комплексе јавних служби -високошколска установа – Факултет примењених уметности (Ј4-2)
Грађевинска парцела и услови за формирање грађевинске парцеле
Планом је дефинисана грађевинска парцела Ј4-2 оријентационе површине 2482m².
Грађевинска парцела: Ј4-2
Катастарска парцела К.О. Стари град : делови кп 1950/1
Планом дефинисану границу наведене грађевинске парцеле није дозвољено мењати.

Извод из Измене и допуне Плана детаљне регулације просторне целине Косанчићев венац за део блока између улица: Карађорђева, Велике степенице и Косанчићев венац, градска општина Стари град(„Службени лист града Београда“, бр. 76/21), графички прилог 02 „План грађевинских парцела са смерницама за спровођење“
Основна намена површина и компатибилне намене
Основна намена је: високошколса установа – Факултет примењених уметности.
Компатибилне намене које су дозвољене су комерцијални садржаји примерени основној намени простора, који не угрожавају животну средину и не нарушавају основни карактер планиране намене.
Планирани однос основне и компатибилне намене примењује се на нивоу грађевинске парцеле Ј4-2 у односу високо образовање : комерцијални садржаји – минимално 90% : максимално 10%.
Није дозвољено увођење других компатибилних намена.


Извод из Измене и допуне Плана детаљне регулације просторне целине Косанчићев венац за део блока између улица: Карађорђева, Велике степенице и Косанчићев венац, градска општина Стари град („Службени лист града Београда“, бр. 76/21), графички прилог 03 „Планирана намена површина“
Број објеката
На грађевинској парцели планира се изградња једног објекта или више објеката разуђене основе.
Дозвољено је распоређивање садржаја Факултета примењених уметности и компатибилних садржаја у више међусобно повезаних објеката, који формирају јединствену архитектонско-функционалну целину.
На грађевинској парцели није дозвољена изградња помоћних објеката.
Изградња нових објеката и положај објеката на парцели
Објекте поставити у оквиру зоне грађења, која је дефинисана грађевинским линијама, како је приказано на графичком прилогу бр.3 – „Регулационо-нивелациони план са аналитичко-геодетским елементима за обележавање“ Р 1:500. (конкурсна документација – конкурсни прилози – 01 измене и допуне ПДРа текстуални и графички део)
Грађевинска линија према улици Карађорђевој је обавезујућа и поклапа се са регулационом линијом.
Грађевинска линија према пешачкој променади 3П3 и градској галерији Ј9-2 је обавезујућа и поклапа се са регулационом линијом.
Дозвољава се коришћење сутеренске етаже за основну намену; сутеренска етажа не улази у обрачун корисне БРГП.

Извод из Измене и допуне Плана детаљне регулације просторне целине Косанчићев венац за део блока између улица: Карађорђева, Велике степенице и Косанчићев венац, градска општина Стари град („Службени лист града Београда“, бр. 76/21), графички прилог 04 „Регулационо-нивелациони план са аналитичко геодетским елементима за обележавање“
Индекс заузетости парцеле
Максимални индекс заузетости грађевинске парцеле износи 75%.
Максимални индекс заузетости грађевинске парцеле подземним етажама износи 90%.
Висина објекта
Посматрано у односу на нулту коту терена - тротоар Карађорђеве улице:
- максимална висина венца је 11 m до 14 m
- максимална висина слемена је 15 m до 18 m.
Максимална висина венца од 11 m и максимална висина слемена од 15 m планирана је за објекте и/или делове објеката уз регулациону линију према Карађорђевој улици.
Максимална висина венца од 14 m и максимална висина слемена од 18 m планирана је за објекте и/или делове објеката према грађевинским парцелама Ј9-2 и ЗПЗ.
Кота приземља
Кота приземља је максимално 1,6 m виша од највише коте приступне саобраћајнице (улица Карађорђева).
Приступ свим садржајима мора бити прилагођен особама са смањеном способношћу кретања.
Услови за слободне и зелене површине
На грађевинској парцели планирати минимално 25% слободних и зелених површина, од чега минимално 10% зеленила у директном контакту са тлом (без подземних објеката и/или делова подземних објеката).
Формирати зелене површине садњом дрвећа (липа, Tilia sp.), шибља, перенских засада, сезонског цвећа и др., као и затрављене површине бусеновањем или сетвом семенских мешавина.
Постојеће дрвеће проценити претходном стручном валоризацијом и уклопити га у планирано решење уколико је то могуће. У слободним просторима поставити засторе од квалитетних и репрезентативних материјала, а према потреби и основни мобилијар (клупе, осветљење и др.).
На планираном објекту формирати озелењене кровне терасе са непропусним изолационим слојевима на којима ће се поставити земљишни супстрат најмање дубине 60 cm; обезбедити контролисано одводњавање вишка воде цевима мањих профила, ужим и плићим риголама и каналетама, према потреби; за озелењавање применити декоративне и цветне форме шибља, перена, пузавица и др; одабрати врсте са плитким кореновим системом, отпорне на негативне услове средине и загађен ваздух; дозвољена је садња нижих форми дрвећа (до 3-4 метра висине), са плићим кореновим системом, на супстрату минималне дубине од 1.2 метара; дрвеће се може садити и у веће, фиксне или мобилне жардињере, најмање дубине супстрата 1.0 метар постављене на равном крову; на простору кровних тераса, формирати засторе од квалитетних и декоративних материјала, а могуће је планирати и мање водене површине (фонтане, водоскоке и др.) у складу са техничким могућностима и ограничењима.
Изабрати претежно аутохтон садни материјал који је отпоран на негативне услове средине, загађен ваздух, нуспродукте издувних гасова и различите микроклиматске услове; избегавати врсте биљака које су препознате као алергене и инвазивне.
Решење паркирања
Колски приступ грађевинској парцели Ј4-2 обезбедити са грађевинске парцеле колско-пешачке стазе
(СА-1).Обезбедити претпростор на припадајућој парцели, тако да возило које чека приступ не омета проток саобраћаја у Карађорђевој улици.
Паркирање решити на парцели изградњом подземне гараже у више нивоа, према нормативу:
1ПМ на 3 запослена; 40% потребног броја ПМ на припадајућој парцели.
Минимално 5% од укупног броја паркинг места, обезбедити за особе са инвалидитетом.
Планирати паркинге за бицикле и возила на електрични погон којима је потребно обезбедити прикључке.
Архитектонско обликовање
Архитектонски израз планираног објекта мора бити савремен, примерен амбијенту и намени објекта.
Садржај и организацију простора пројектовати према потребама и програмском задатку за специфичну намену објекта. При пројектовању објекта Факултета примењених уметности, обавезна је примена: принципа савременог архитектонског обликовања и технологија грађења, атрактивних елемената, нових конструктивних система и квалитетних и савремених материјала за фасадну облогу, као и елемената урбаног дизајна, у складу са значајем објекта, наменом, карактером и временом у коме објекат настаје.
Објекат квалитетом изградње и архитектонским обликовањем треба да представља репер у простору и створи препознатљив и привлачан урбани амбијент. Објекат ускладити са карактером амбијента, конфигурацијом терена и вредностима архитектонског и урбаног наслеђа у погледу габарита, диспозиције, пропорција, типа градње, обликовања и материјализације.
На вертикалној пројекцији дела грађевинске парцеле налази се део лагума, једног од највећих и најрепрезентативнијих на падини. Планирати ревитализацију и активирање постојећих лагума и њихову адаптацију у адекватну намену, чиме би архитектонске и функционалне одреднице ове целине биле проширене и употпуњене, а читав простор добио на атрактивности.Пажљивим пројектовањем и усклађивањем елемената који формирају волуметрију објекта тежити уклапању у постојеће окружење .
С обзиром на просторну диспозицију објекта и његово сагледавање са реке и учешће у формирању слике града, при обликовању посебну пажњу обратити на обраду фасада - архитектонску артикулацију, материјализацију и колористичку обраду.
Приликом пројектовања посебну пажњу посветити контакту објекта са пешачком променадом 3П3.
Услови за ограђивање парцеле
Није дозвољено ограђивање парцеле.
Минимални степен опремљености комуналном инфраструктуром
Објекат мора имати прикључак на водоводну и канализациону мрежу, електричну енергију, телекомуникациону мрежу, топловодну мрежу или други алтернативни извор енергије.

Извод из Измене и допуне Плана детаљне регулације просторне целине Косанчићев венац за део блока између улица: Карађорђева, Велике степенице и Косанчићев венац, градска општина Стари град („Службени лист града Београда“, бр. 76/21), графички прилог 05 „Синхрон план“
Инжењерскогеолошки услови
Према инжењерскогеолошкој рејонизацији предметни простор припада рејонима Ia и Ib. За планирани објекат извести детаљна геолошка истраживања у складу са Законом о рударству и геолошким истраживањима („Службени гласник РС'' бр. 101/15, 95/18 и 40/21).

Извод из Измене и допуне Плана детаљне регулације просторне целине Косанчићев венац за део блока између улица: Карађорђева, Велике степенице и Косанчићев венац, градска општина Стари град („Службени лист града Београда“, бр. 76/21), графички прилог 06 „Инжењерскогеолошка карта терена“
У зависности од статичких и грађевинских карактеристика објеката, фундирање се може извести на два начина - плитко или дубоко фундирање. За објекте малог специфичног оптерећења препоручује се варијанта плитког фундирања. У том случају могуће је фундирање објекта уз претходну замену подтла материјалом повољних физичко механичких својстава, насипањем и израдом тампонског слоја. При изради објеката већег специфичног оптерећења неопходно је дубоко фундирање путем шипова које треба ослонити у кречњацима односно лапорима. Начин фундирања може се изабрати тек након детаљних инжењерскогеолошких истраживања и геостатичке анализе за сваки објекат понаособ.
За сваки новопланирани објекат неопходно је урадити детаљна геолошка истраживања а све у складу са Законом о рударству и геолошким истраживањима („Службени гласник РС“ бр. 101/2015, 95/2018 – др. закон и 40/2021).
У фази пројектовања треба прецизирати услове којих треба да се придржавају будући инвеститори и извођачи како би се сачувала стабилност објеката и локације у целини. Такође, неопходна је израда пројекта заштите падине и суседних објеката.
Саобраћајне површине
Интегрисана колско-пешачка стаза (грађевинска парцела СА-1)
Интегрисана колско – пешачка стаза планирана је за приступ грађевинским парцелама Ј9-1 и Ј4-2, како би се избегао колски приступ објекту Ђумрукане са парцеле Великих степеница.
Планом је дефинисана грађевинска парцела интегрисане колско-пешачке стазе (СА-1), оријентационе површине 167,1 m2.
Планирани приступ је у нивоу Карађорђеве улице, али могуће је одредити и другачију нивелацију у функцији приступа подземним етажама ових парцела, али тако да се минимално 5 m од тротоара задржи ниво тротоара.
Ради безбедности пешака, потребно је обезбедити приступ одговарајућом сигнализацијом и рампом.
Коловозну конструкцију димензионисати према очекиваном саобраћајном оптерећењу, структури саобраћаја и геомеханичким карактеристикама тла.
Ширина интегрисане колско-пешачке стазе износи 6,0 метара.
Мале степенице, коси лифт (грађевинска парцела СП7-2)
У оквиру грађевинске парцеле СП7-2, оријентационе површине 476,9 m2, планира се:
- степениште и вертикално шинско возило (коси лифт), који повезују Карађорђеву улицу на коти 77 mnv и платоа испред градске Галерије на коти 91 mnv,
- пешачки приступ подземним етажама објекта Градске галерије,
- инфраструктурна веза објекта Градске галерије са Карађорђевом улицом (уколико постоје техничке могућности у условима ЈКП),
- трафостаница ТС 10/0,4 Kv,
- приступ лагуму.
Планирану грађевинску парцелу СП7-2 третирати као јавну површину коју је потребно адекватно партерно уредити, озеленити и комунално опремити и обезбедити њену статичку стабилност.
Мало степениште и коси лифт морају бити у јавној употреби. Конструкцију степеница димензионисати у складу са планираним пешачким оптерећењем и геомеханичким карактеристикама тла.
Пешачку комуникацију Малих степеница осветлити јавним осветљењем, функционалним и декоративним. Пројектантско решење мора да обезбеди непрекинуту визуру са коте 91 mnv до коте 77 (Карађорђева улица).
Планирати озелењавање простора око Малих степеница и косог лифта. Претходно извршити анализу и процену стања постојеће вегетације. Водити рачуна да планирана вегетација ни на који начин не омета и не заклања визуре са виших кота Малих степеница у правцу ка савској обали, реци Сави, као и у правцу Новог Београда.
Коси лифт планирати са следећим елементима: ширина појаса косог лифта је до 3 метра; тип косог лифта је „без промене нагиба“, са две станице (почетном и крајњом), за спољашњу употребу.
Мере енергетске ефикасности изградње
Законом о планирању и изградњи („Сл.гласник РС“, бр.72/09, 81/09, 64/10, 24/11, 121/12, 42/13, 50/13, 98/13, 132/14, 145/14, 83/18, 37/19, 9/20 и 52/21) прописано је да сви новопланирани објекти морају да задовоље прописе везане за енергетску ефикасност објеката, односно обезбеде минималне прописима утврђене услове комфора а да при томе потрошња енергије на годишњем нивоу не пређе дозвољене максималне вредности по m². Потврду испуњености ових услова садржи Сертификат о енергетским својствима зграда (Енергетски пасош), који је саставни део техничке документације која се прилаже уз захтев за издавање употребне дозволе, у складу са Правилником о условима, садржини и начину издавања сертификата о енергетским својствима зграда („Сл. гласник РС“, бр. 69/2012 и 44/18-др.закон).
У изградњи планираних стамбених објеката и јавних објеката, као и изградњи и уређењу слободних јавних простора обезбедити ефикасно коришћење енергије и могућност коришћења обновљивих извора енергије кроз:
- оријентацију и функционални концепт објеката тако да се користе природа и природни ресурси, пре свега енергија сунца, ветра и околног зеленила,
- коришћење нових техничких и технолошких решења,
- топлотно зонирање зграда, односно груписање просторија сличних функција и сличних унутрашњих температура,
- избор облика зграда којима се обезбеђује што је могуће енергетски ефикаснији однос површине и запремине омотача зграде у односу на климатске факторе и намену зграда,
- коришћење природног осветљења и пасивних добитака топлотне енергије зими, односно заштите од прегревања у току лета адекватним засенчењем,
- оптимизацију величине отвора како би се смањили губици енергије, а просторије добиле довољно светлости, у складу са наменом просторија,
- заштиту делова објеката који су лети изложени јаком сунчевом зрачењу зеленилом и другим мерама,
- изградњу „пете фасаде“ објеката као зелених кровова, када год је то могуће,
- планирање система природне вентилације (вентилациони канали, прозори, врата, други грађевински отвори) тако да буду што мањи губици топлоте у зимском периоду и топлотно оптерећење у летњем периоду,
- коришћење обновљивих извора енергије локације – сунца, подземних вода, ветра и других, применом стаклених башти, топлотних пумпи и сл.
- пројектовање система централног грејања тако да буде омогућена централна и локална регулација и мерење потрошње енергије за грејање,
- планирање мобилијара који доприноси заштити од превеликог утицаја сунчевог зрачења и негативних атмосферских утицаја (ветар, падавине),
- избор мобилијара и материјала за завршну обраду слободних површина тако да рефлектују сунчево зрачење (хладни материјали),
- коришћење елеманата у екстеријеру и ентеријеру који обезбеђују смањење температура лети и заштиту од хладноће зими (фонтане, зелени зидови, зелени кровови, водени зидови, брисолеји, транзене, конструкције које омогућавају циркулацију топлог ваздуха и проветравање и сл.),
- коришћење ресурса геотермалне воде у функцији грејања ваздуха и техничке воде у објектима и екстеријеру,
- правилан одабир и позиционирање вегетације, у циљу смањења негативних ефеката директног и индиректног сунчевог зрачења на објекте, као и негативног утицаја ветра,
- економичну потрошњу свих облика енергије, било да су они обновљиви или необновљиви; употребу енергетски ефикасних расветних тела; коришћење грађевинских материјала из окружења; одвајање рециклабилног отпада ради даље прераде.
Приликом пројектовања, радова на изградњи и експлоатацији објеката у зони Косанчићевог венца придржавати се одредби Правилника о енергетској ефикасности зграда („Службени гласник РС“, бр. 61/2011).
Препорука је да се пре изградње објеката уради истраживање локације, те да се, уколико истраживања покажу да локација има потенцијал за коришћење геотермалних вода за снабдевање објеката топлотном енергијом, максимално користе геотермални извори за топлотне потребе.
Услови за приступачност простора
У даљем спровођењу Плана, при решавању саобраћајних површина, прилаза објектима и других елемената уређења и изградње простора и објеката применити одредбе Правилника о техничким стандардима планирања, пројектовања и изградње објеката којима се осигурава несметано кретање и приступ особама са инвалидитетом, деци и старим особама („Службени гласник РС“, бр. 22/15).
Услови за евакуацију отпада
Дуж Карађорђеве улице постављени су контејнери запремине 1,1 m3 на тротоару испред објеката. Таква технологија треба да буде примењена и за потребе реконструкције Ђумрукане и изградње планираног Факултета примењених уметности. Потребан број судова за смеће треба обрачунати помоћу важећег норматива: 1 контејнер на 800 m2 корисне површине сваког објекта појединачно, а затим одредити и њихове локације у оквиру граница припадајуће парцеле или у смећарама или посебно одређеним просторима за те потребе унутар самих објеката.
До саме локације контејнера потребно је обезбедити директан и неометан прилаз за раднике ЈКП „Градска чистоћа“, при чему се мора водити рачуна о максимално дозвољеном ручном гурању од места за њихово постављање до комуналног возила које износи 15 m, обавља се по равној подлози, без степеника и на том путу не смеју бити паркирана возила која могу ометати пражњење.
Смећаре унутар објеката граде се као засебне, затворене просторије, без прозора, са електричним осветљењем, точећим местом са славином и холендером и сливником повезаним на канализациону мрежу, ради лакшег одржавања хигијене простора.
За смештај контејнера на слободним површинама уз објекат којем припадају и у границама парцеле, могу се изградити нише ограђене зеленилом или посебни боксови уклопљени у амбијенталну средину према идеји и решењу инвеститора / пројектанта.
За сваки планирани објекат појединачно инвеститор је у обавези да се, у складу са законским прописима, обрати ЈКП „Градска чистоћа“ за добијање ближих услова, да их примени приликом изградње и добије употребну дозволу како би исти били обухваћени оперативним системом за одношење смећа.
/документациона основа за израду ПДР-а дата је у Прилозима – Услови и мишљења ЈКП и других учесника у изради Плана/

Слика 32– Конкурсни обухват, 2021. ©П.У